株式会社TOYOKEのプレスリリース
スパ施設のプロデュースやヴィーガンフードの企画・開発を行うウェルネスカンパニーである株式会社 TOYOKE(トヨーク、本社:東京都渋谷区、代表取締役:古屋 蔵人)は、サウナ愛好者の“バイブル”と呼ばれるほど⼈気の書籍『サ道』の原作者であるタナカカツキ氏が総合プロデュースを手掛け、 2022年12月23日(金) 渋谷区桜丘町にオープンするサウナ施設「渋谷SAUNAS(サウナス)」の施設内部の様子を公開いたします。


1. 渋谷サウナスのこだわり抜いた空間設計
渋谷サウナスは、全てのサウナファンが求める細部にまでこだわったサウナを目指してつくられ、書籍『サ道』の作者であり、サウナ・スパ協会公認の日本サウナ大使としても活躍されるタナカカツキ氏のプロデュースによって「ととのう」ために必要だと考えられる基本的な要素を妥協なく取り揃えました。
館内には趣向を凝らした8種類9つのサウナ室と2種類4つの水風呂があり、男女の浴室を日替わりにすることで全てのサウナ室をお客様に愉しんでいただけるようになっています。
設計はSNARKの山田 優氏が担当しており、サウナ室で過ごす時間はもちろん、サウナ室を出た後も心地よさが途切れないように、手足の肌が触れる部分には角を取り除いた仕上げを施すなど細かなディティールや素材の選定にも気を配りました。
また、視覚的なノイズを最小限に抑えるために、目を労った照度設計をし、館内の掲示サインを可能な限りミニマルに表現するなど、館内全体の細部に至るまで配慮し、全ての人に「ととのう」体験を提供できるように努めています。
- タナカカツキ氏よりコメント
心身を「休息」させるための条件
サウナは自然体験であると言われます。都市こそサウナが必要。渋谷SAUNASは心身を「休息」させるための条件を満たし、理想的な空間を実現いたしました!ぜひお越しくださいませ。
- SNARK 山田 優氏よりコメント
感覚的な気持ちよさを追求したデザイン
サウナに入ると感覚が研ぎ澄まされるので、館内の細部に至るまで感覚的な気持ちよさを意識したマテリアルとディティールでデザインしました。
8種類のサウナ室と2種類の水風呂はそれぞれコンセプトをたて、素材の使い方や各部の細かな寸法を様々な分野のプロフェッショナルの方々と詳細に検討しつくりあげました。サウナの聖地フィンランドへのサ旅やリトアニアでのウィスキング体験で得た知見もふんだんに盛り込んでいます。また、館内の家具や看板、ソープホルダーなどの細部のパーツまで一貫してととのいを邪魔しないシンプルで上品なデザインで統一しています。
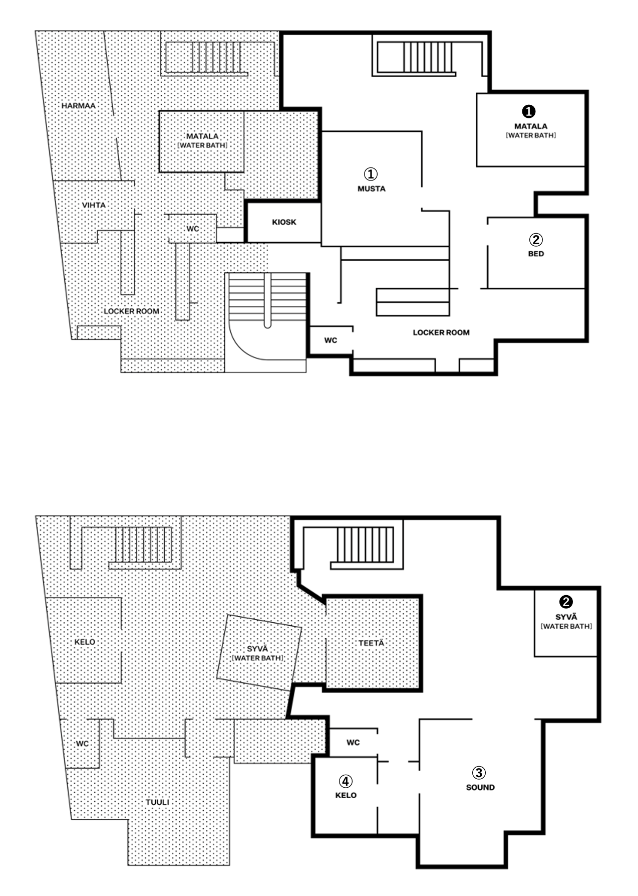
2. 趣向を凝らした9つのサウナ室と4つの水風呂
東側:LAMPI(ランピ=池)
東側:LAMPI(ランピ=池)
2F
① MUSTA(ムスタ=黒)
格子窓が特徴的な和の意匠を取り入れたサウナ。
照度を抑えて落ち着いた空間でセルフロウリュが愉しめる。
② BED(ベッド)
ベッドのように3人まで寝転ぶことができるオートロウリュ付きのサウナ室。
❶ MATALA(マタラ=浅い)
寝転ぶことができる水風呂。
頭を置く部分にも水が流れ、後頭部も冷やすことができるように設計されている。
3F
③ SOUND(サウンド)
音楽家とくさしけんご氏とWHITELIGHTが共同開発したサウンドシステムを搭載し、ロウリュの熱と音の広がりを考慮して設計された円錐形の反射板が特徴的な音を愉しむためのサウナ。
④ KELO(ケロ)
樹齢数百年のフィンランドパインが立ち枯れてできた希少性の高いケロ材を使用したサウナ室。
ウィスキングマイスターによるウィスキング*1の施術を受けることも可能。
❷ SYVÄ(シヴァ=深い)
関東最深級を誇る深さ160cmの水風呂。
MUSTA
BED
MATALA
SOUND
KELO
SYVA
西側:WOODS(ウーズ=森)
西側:WOODS(ウーズ=森)
2F
⑤ HARMAA(ハルマー=灰色)
グレーを基調とした空間が特徴。
座面下がZ字状に屈折しており足元にゆとりがある設計。
⑥ VIHTA(ヴィヒタ)
サウナ室内をヴィヒタで覆い尽くしたボタニカルな空間。
3人掛けのコンパクトな室内で白樺の香りが堪能できる。
❶ MATALA(マタラ=浅い)
寝転ぶことができる水風呂。
頭を置く部分にも水があり、後頭部も冷やすことができるように設計されている。
3F
⑦ TEETÄ(テータ=茶)
胡座になってサウナストーブを囲み、小窓からの景色を愉しめる茶室をイメージしたサウナ。
クロモジ茶のアロマを使用。
⑧ TUULI(トゥーリ=風)
床から天井までを木材で埋め尽くした美しい空間。
天井が高く、20人程を収容可能なアウフグース*2を愉しむためのサウナ。
④ KELO(ケロ)
樹齢数百年のフィンランドパインが立ち枯れてできた希少性の高いケロ材を使用したサウナ。
ウィスキングマイスターによるウィスキングの施術を受けることも可能。
❷ SYVÄ(シヴァ=深い)
関東最深級を誇る深さ160cmの水風呂。
HARMAA
VIHTA
TEETA
TUULI
*1 植物について専門的な知識を持つウィスキングマイスターによって、室内の温湿度を制御しつつ、ウィスク(心身への効能が期待される植物の束)を用い、身体に押し当てたり軽く叩いたりマッサージを行うサービス。
*2 熱したサウナストーンにアロマ水などをかけ、発生した蒸気をタオルなどで仰ぐドイツ式のサービス。
- 都市型サウナでは貴重な外気浴スペース
サウナでととのうためには、サウナ→水風呂→外気浴という順を踏むのが理想と考えています。渋谷サウナスでは、都市型サウナでは貴重な外気浴スペースを確保。さらにSOLSO(株式会社 DAISHIZEN、本社:東京都港区)が手掛ける植栽と、フィンランドの森を連想させるミスト噴霧により、心地よく外気浴をしていただける空間となっています。

3. 心地よく過ごしてもらうためのアイデア
- DIGAWEL監修の館内着とOSAJIのアメニティ
当施設の館内着は、アパレルブランドDIGAWEL監修により製作されました。ストレッチ性はありながら締め付けの少ない素材や首・腕周りにゆとりを持たせたデザインで、サウナ後のととのった身体を心地よく包むこと、そしてワークスペースでの作業時にストレスにならない機能性を追求しました。ジェンダーフリーなデザインで、カラーはトップスがライトグレーとダークグレー、ボトムスがイエローとオレンジのそれぞれ2色展開となっています。
また、施設内でご利用いただけるシャンプーやボディソープ、フェイシャルウォッシュやトナー(化粧水)といったアメニティは、OSAJIのアイテムを採用しています。
アイテムラインナップ
・ Ikoi ……… ヘアシャンプー/ヘアコンディショナー/ボディソープ/ハンドソープ
・ Muku …… クレンジングリキッド
・ Ibuki …… フェイシャルウォッシュ/フェイシャルトナー/フェイシャルゲル

■ DIGAWEL〈ディガウェル〉
“ライフ”と”スタイル”のあり方とかたちを探り続けるファッションレーベル。2006年東京・目黒にショップをオープン。TOKYO FASHION AWARD 2018受賞。2018年よりパリで展示会をファッションウィークに行っている。
http://digawel.com/
■ OSAJI〈オサジ〉
健やかで美しい皮膚を保つためのスキンケアライフスタイルを提案するトータルコスメブランド。皮膚の構造や機能、そして皮膚はどのようにして健康と美しさを保つのか、その一つひとつに真摯に向き合い、国産の植物原料や植物由来原料を使用するとともに、アレルギーに対してリスクのある成分は極力入れない化粧品を製造しています。
https://osaji.net/
- 「ととのう」を妨げないレストラン
館内にはミシュラン2つ星の精進料理 醍醐 四代目 野村祐介氏監修による新業態のヴィーガンレストランが併設。提供されるのはすべてヴィーガン対応のメニューで、「サウナでととのった後でも体の健やかさを妨げないカジュアルフード」をコンセプトに、カレー、ラーメン、ドーナツ、クラフトオロポといったカジュアルなメニューを取り揃えます。
※ フードメニューの価格表記は、イートインの場合
果実とスパイス香るヴィーガンカレー ¥1,540 税込
国産のリンゴ・人参・玉葱・生姜を使用し、カルダモンやシナモン・クミンなどのスパイスを利かせたヴィーガンカレーです。グルテンフリーで上白糖も使用しておりません。
焼きネギ醤油ラーメン ¥1,320 税込
昆布だしをベースに、こだわりの醤油でしっかりとした味や旨味を表現したラーメン。
全粒粉のクラフトドーナツ ¥396 税込〜
生地にタピオカ粉を練り込み、ふわふわでもちっとした食感が特徴です。プレーン、シナモン、チョコレートの3種類をご用意しています。
クラフトオロポ ¥660 税込
ハチミツを使わずヴィーガン素材のみでつくった炭酸飲料。
※オロポは大塚製薬株式会社の商標です。

- ON・OFFをゆるやかに紡ぐワークスペース
テーブルとカウンター合わせて45席を有する1Fから中2Fにかけてのオープンエリアは、ワークスペースとして館内着のままご利用いただけます。予約制の会議室は6人/8人収容の2部屋を用意。電源・Wi-Fiを完備しており、空間・設備共に、ウェルビーイングなひとときをお過ごしいただける、都会のメディテーション施設となっています。

4. 渋谷サウナス 施設概要
| 開業日 | 2022年12月23日(金) |
| 所在地 | 東京都渋谷区桜丘町18-9(S造 地上3階建て) |
| 入場料 | 月〜金 ¥2,800(¥3,080 税込)〜 土日祝 ¥3,500(¥3,850 税込)〜 |
| 営業時間 | 8:00〜24:00 ※ 不定休 ※ 当面の間、営業時間は8:00〜23:00を予定、予約制となります。 ご来館の際はWEBサイトをご確認ください。 ▶︎ 渋谷サウナスWEBサイト|https://saunas_saunas.com/ |
渋谷SAUNAS 外観

施設利用の注意
● 渋谷サウナスでは以下の方のご入館をお断りいたします
18歳未満の方、大小に関わらず入れ墨・タトゥー(ペイント・シール等含)をされている方、泥酔された方、暴力団関係者、反社会的団体組織関係者と認められる方、伝染・感染の恐れのある疾患をお持ちの方、医師に入浴を禁じられている方、入浴・トイレ等がお一人で確実に行えない方
● 館内では以下の行為を禁止いたします
他のお客様へのご迷惑や危険と思われる行為、飲食物・ペット類のお持ち込み、運転される方の飲酒、脱衣所を含む浴室エリアでの携帯電話をはじめとした電子機器類の使用、喫煙行為、その他一切の違法行為
*上記の違反が判明した場合、発見次第料金をお支払いの上、速やかにご退館していただきます
● 館内は全エリア禁煙となります
● リストバンド・ロッカーキーを紛失された場合は、補償金額¥5,000をご負担頂きますので、予めご了承ください
● 店内においての盗難・紛失等については一切の責任を負いかねます
- 渋谷サウナス総合プロデューサー タナカカツキ氏
1966年大阪生まれ。1985年マンガ家デビュー。
サウナ愛好者の“バイブル”と呼ばれるほど⼈気の書籍『サ道』の原作者。2019年にはテレビ東京の「ドラマ25」で『マンガ サ道』がドラマ化され「ととのう」が流行語に。著書には『サ道』のほか、『オッス!トン子ちゃん』、天久聖一との共著『バカドリル』など。カプセルトイ「コップのフチ子」の考案者でもある。公益社団法人日本サウナ・スパ協会公認のサウナ大使。
イラスト:タナカカツキ
- TOYOKE Inc.
TOYOKE(トヨーク)は現代生活のなかで心身を健やかに保ち、私たちをとりまく社会や環境、
そして地球の未来が幸せであり続けられるアイテムやサービスを生み出すウェルネスカンパニーです。
TOYOKEの由来は、日本神話に登場する食物と穀物を司る女神、豊受大神(トヨウケノオオカミ)。
「豊かな食物によって、豊かな生活がもたらされますように」という想いを込めて名付けました。
具体的な取り組みとして、プラントベースのフード製品、スパ施設のプロデュースなどを展開。フードやリトリートを通じて、よりよい生活の手助けとなるようなウェルネス・エクスペリエンスを提供します。
https://toyoke.jp/

